





$180
Одеса
Купити зруб будинку з бруса під ключ
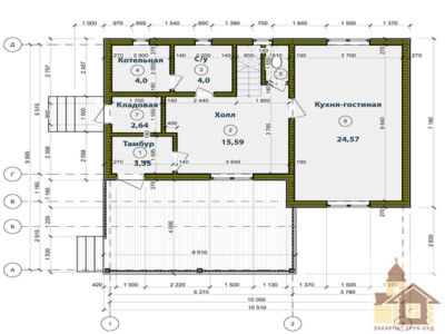
Мрієте про власний дерев’яний будинок? Купити зруб будинку з бруса під ключ від Закарпат Зруб-Буд — це надійно та швидко. Дерев’яні будинки під ключ з закарпатської смереки створюють комфорт, тепло та затишок у будь-який сезон. Проєкт Дерев’яний будинок ЗСБ «Бажання» 82 м² — ідеальний вибір для сімейного життя. Дізнайтесь більше: https://www.srub-bud.net/case/zsb-bazhannya-82/